11/07/2020 10:31:46
DG Home thi công nhà anh Hoàng với hình thức Xây nhà trọn gói – Chìa khóa trao tay. Công trình đang được đội ngũ Kỹ sư của DG Home gấp rút triển khai để đảm bảo tiến độ cho gia chủ.
Địa chỉ: Đống Đa – Hà Nội
Diện tích: 50m2 x 6 tầng
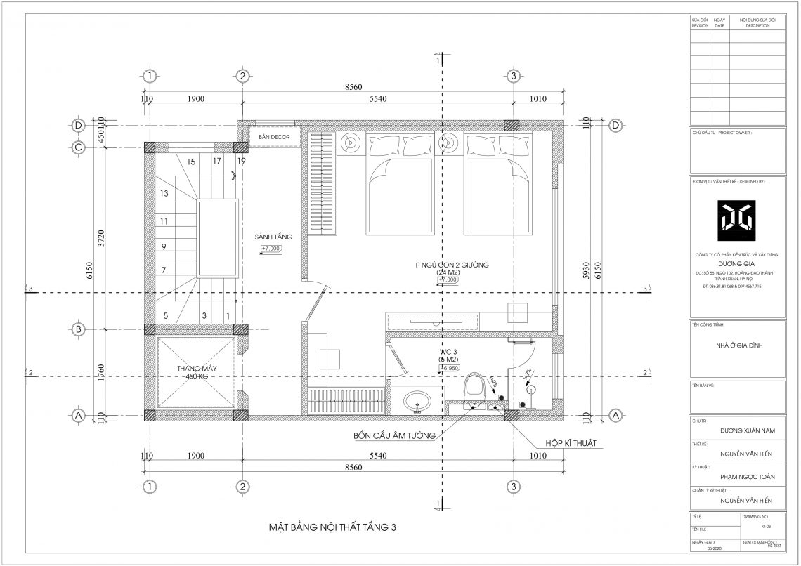
Thiết kế dự án nhà anh Hoàng
1. Phương án thiết kế




Các hình ảnh trong quá trình thi công công trình







Còn tiếp…
Công ty CP Thương Mại và Dịch vụ Xây Dựng DG Home
VPGD: Ngõ 570 Kim Giang, Thanh Xuân, Hà Nội
Hotline: 086.818.1068
Tư vấn KT: 097.4567.715
Rất hân hạnh được phục vụ quý khách!!!

Xuân Đức Architect – 1 kỹ sư xây dựng với đam mê thiết kế kiến trúc ngôi nhà, đã triển khai nhiều dự án Sửa nhà trọn gói, xây nhà trọn gói, hoàn thiện biệt thự cho DG Home
